Webから予約

NEW

アンビックス神田

14.55万円

管理 / 共益費 17,440円

東京都千代田区神田鍛冶町3丁目

丸ノ内線「大手町」駅徒歩10分

銀座線「神田」駅徒歩3分

都営新宿線「小川町」駅徒歩7分

賃料
14.55万円
敷金(保証金)
1ヶ月(0ヶ月)
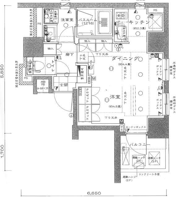
間取り
1R
向き
-
所在地
東京都千代田区神田鍛冶町3丁目
管理 / 共益費
17,440円
礼金
1ヶ月
専有面積
31.50㎡
築年月
2012年5月(築13年)
交通

丸ノ内線大手町」駅 徒歩10分

銀座線神田」駅 徒歩3分

都営新宿線小川町」駅 徒歩7分

物件の特徴

  • バストイレ別

  • 室内洗濯機置場

  • TVモニタ付きインターホン

  • 独立洗面台

  • 浴室乾燥機

  • オートロック

  • エレベーター

セールスポイント

エリア特化した地域密着型担当が初めて住む駅も詳しくご案内

基本情報

保証金
0ヶ月
敷引 / 償却
- / -
敷金積み増し
-
間取り / 詳細
1R
向き
-
専有面積
31.50㎡
バルコニー
(テラス)面積
-
所在階 / 階建て
4階 / 9階建
建物構造
鉄筋コンクリート
築年月
2012年5月(築13年)
種別
賃貸マンション
保険会社 / 料金
有  2,000円  / 2年
保証会社 / 料金
必加入 / その他
初回50%、月額1.5%
現況
空家
入居可能時期
即時
その他条件
契約事務手数料:1万1,000円  エステム安心クラブ:5,500円  エステム安心クラブ:990円(月額) 法人契約希望 社宅可 事務所使用不可 SOHO使用不可楽器不可DIY不可ペット不可保証人不要ルームシェア可 二人入居可

設備条件

設備条件
  • 保証人不要 / 2人入居可 / 分譲タイプ / ルームシェア可 / 室内洗濯機置場 / フローリング / バルコニー / 都市ガス / 公営水道 / 公共下水 / エレベーター / 電気有 / 照明器具付き / ガスコンロ / コンロ2口以上 / システムキッチン / バス・トイレ別 / 追焚機能浴室 / 浴室乾燥機 / 温水洗浄便座 / 独立洗面台 / エアコン / シューズボックス / 光ファイバー / オートロック / TVモニタ付インターホン / 宅配ボックス / ディンプルキー / 防犯カメラ / 初期費用カード決済可

その他

契約期間
2年
賃貸区分
一般
更新料
1ヶ月(新賃料)
更新事務手数料
-
総戸数
38戸
特優賃
-
取引態様
仲介
物件番号
100421089
管理コード
-
情報更新日
2026年01月13日
次回更新予定日
2026年01月27日
取扱会社
  • 株式会社クライスホーム
  • 東京都千代田区神田駿河台2丁目4-4 第2御茶ノ水ビル2F
  • TEL:03-5283-8822
  • 東京都知事 (3) 第094384号
  • (公社)全日本不動産協会会員
    (公社)首都圏不動産公正取引協議会加盟
備考
■雨の日もお洗濯できる浴室乾燥機付き
■いつでも受け取れる宅配ボックス完備
■楽しくお料理2口ガスコンロ
■詳細はお気軽にお問い合わせください。

周辺施設

  • chocoZAP 神田の画像

    ジム

    chocoZAP 神田

    98m(2分)

  • 肉のハナマサ 神田店の画像

    スーパー

    肉のハナマサ 神田店

    446m(6分)

  • COREDO室町テラスの画像

    ショッピングセンター

    COREDO室町テラス

    683m(9分)

  • アニメイト秋葉原の画像

    その他

    アニメイト秋葉原

    942m(12分)

  • ヨドバシカメラ マルチメディアAkibaの画像

    家電製品

    ヨドバシカメラ マルチメディアAkiba

    1081m(14分)

  • どらっぐぱぱす小伝馬町店の画像

    ドラッグストア

    どらっぐぱぱす小伝馬町店

    1262m(16分)

近隣の物件

  1. パークコート千代田駿河台ヒルトップレジデンス

    千代田区神田駿河台2丁目

    2LDK (81.76㎡)

    50万円

  2. ザ・パークワンズ千代田佐久間町

    千代田区神田佐久間町4丁目

    1R (25.10㎡)

    14万円

  3. プレミスト六番町

    千代田区六番町

    1LDK (54.45㎡)

    34.5万円

  4. パークルール神田司町ロンド

    千代田区神田司町2丁目

    1LDK (33.77㎡)

    17.3万円

アンビックス神田

アンビックス神田

14.55万円

17,440円

1R(31.50㎡)

お気軽にお問い合わせください

LINEからお問い合わせ 無料お問い合わせ

株式会社クライスホーム

03-5283-8822

11:00~18:00

(休:水曜日)

Webから予約